
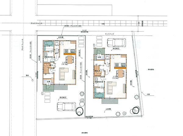
・築:令和6年2月・棟数:2棟・タイプ:各戸3LDK
・設備:システムキッチン、ペアガラス、エアコン(全室:4台)
システムバス(追い焚き・浴室暖房乾燥機)、照明(全室)
・広い敷地の快適住環境(除草など年間通しての整備)
・最寄駅:JR新幹線・岐阜羽島駅 車で5分 名鉄羽島線・江吉良町駅 徒歩2分

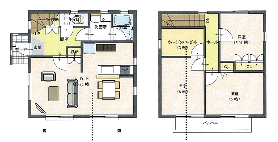
・築:平成28年3月・棟数:2棟・タイプ:各戸2LDK
・設備:エコキュート給湯、システムキッチン、ペアガラス、ワイド浴槽、エアコン大型(1基)
照明(全室)
・シンボルツリー・駐車場をシンプルに配置した洒落た戸建住宅
・最寄駅:JR新幹線・岐阜羽島駅 車で5分 名鉄羽島線・江吉良町駅 徒歩3分

・築:平成26年3月・棟数:3棟・タイプ:各戸3LDK
・設備:システムキッチン、ペアガラス、ワイド浴槽、エアコン(2基)、照明(全室)
・シンボルツリー。サイクルポート、駐車場(各戸2台)をシンプルに配置した洒落た戸建住宅
・最寄駅:JR新幹線・岐阜羽島駅 車で5分 名鉄羽島線・江吉良町駅 徒歩3分

・築:平成25年2月・棟数:3棟・タイプ:各戸3LDK
・設備:システムキッチン、ペアガラス、ワイド浴槽、エアコン(2基)、照明(全室)
・洒落た植栽が配置された小さなコミュニティータウン(剪定など年間通しての環境整備)
・最寄駅:JR新幹線・岐阜羽島駅徒歩10分

・築:平成25年2月・棟数:3棟・タイプ:各戸3LDK
・設備:システムキッチン、ペアガラス、ワイド浴槽、エアコン(2基)、照明(全室)
・洒落た植栽が配置された小さなコミュニティータウン(剪定など年間通しての環境整備)
・最寄駅:JR新幹線・岐阜羽島駅車で4分、名鉄羽島線・江吉良駅徒歩3分